+7 (3467) 93 90 90

ЖК на Квартал Объездной дом 1 1ком 53,40кв.м

ЖК на Квартал Объездной дом 1 1ком 53,40кв.м

Подробнее о ЖК

г. Ханты-Мансийск , Ханты-Мансийский автономный округ-Югра , ул. Объездная , 57

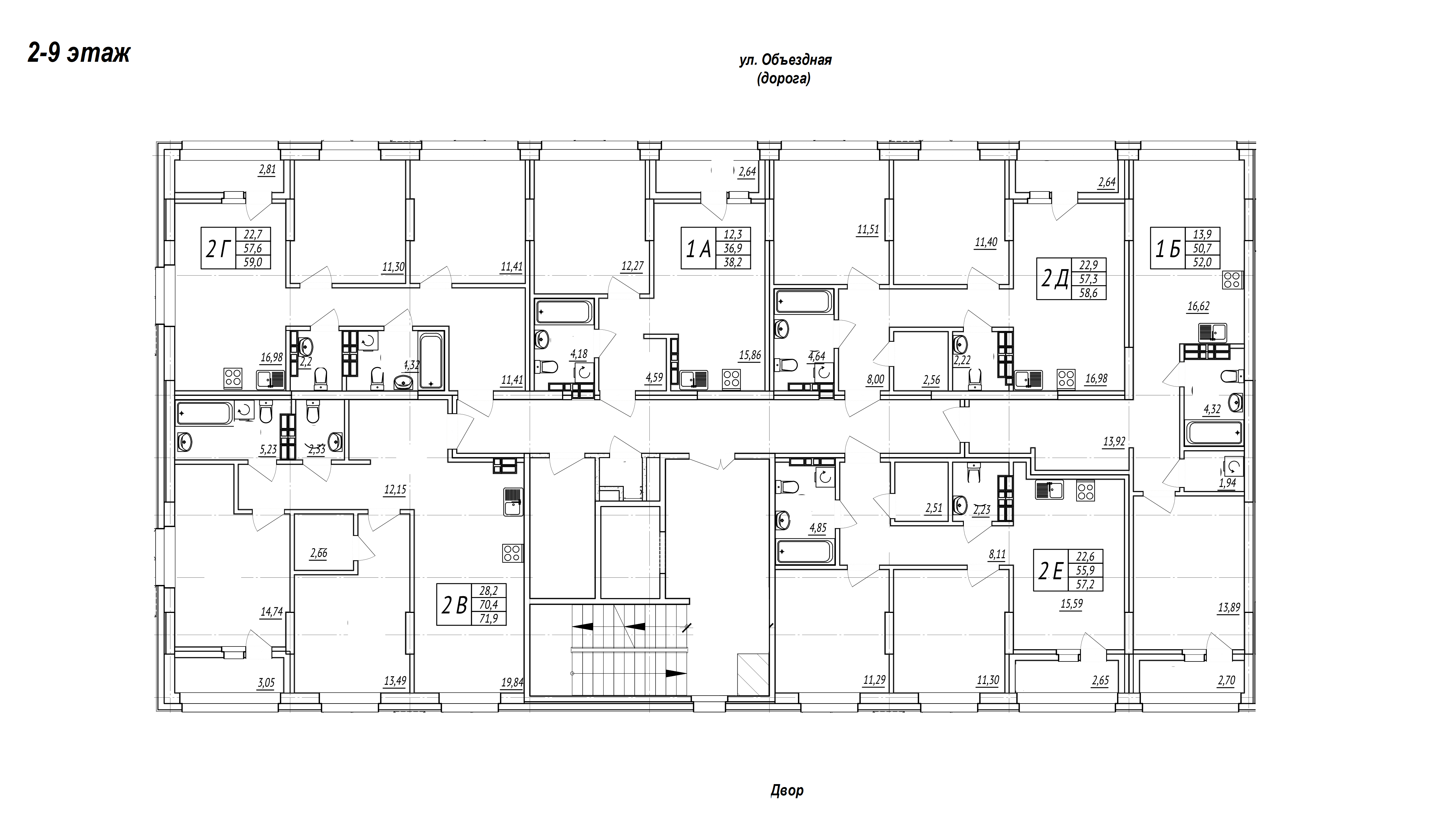
Этаж

2/9

Количество комнат

1

Санузел

Совмещенный

Отделка

Предчистовая

Общая площадь

53,40 м2

Тип комнат

Изолированные и смежные

Площадь кухни

м2

Материал стен

Монолитный

ЖК «Квартал на Объездной» дом 1 - это многоквартирный жилой комплекс, расположенный в районе Гидронамыв. Представляет собой 9 и 13 этажей. Всего в доме 2 подъезда и 122 квартиры. Конструктив - монолитный каркас с заполнением керамзитовыми блоками.

Проектом предусмотрены наличие коммерческих помещений и келлеров, колясочных, наземного паркинга.  Застройщик предлагает дизайнерские МОПы и наличие большой придомовой территории. Так же в жилом доме будут расположены пункты выдачи маркет-плейсов. Запроектированы квартиры от однокомнатной 39,40 кв.м., до двухкомнатной квартиры 93,30 кв. м. Высота потолков – 2,90 м. Квартиры будут передаваться в улучшенно-черновой отделке.

В шаговой доступности: образовательные учреждения, набережная, спортивные комплексы.
Развитый микрорайон, с хорошей транспортной развязкой. Рядом расположены и д/с Теремок, Сказка, Березка, школа №2 и № 4, Гимназия №1. Поблизости находится Горнолыжный комплекс, Археопарк, Арена-Югра. Все виды магазинов Магнит, Пятерочка.

Дом будет введен в эксплуатацию в 2025 году.

Расположение

г. Ханты-Мансийск , Ханты-Мансийский автономный округ-Югра , ул. Объездная , 57

Как добраться

8 010 000 ₽

150 000 ₽ за м²

8 010 000 ₽

150 000 ₽ за м²